Case Study
A Masters Inspired Midlothian Masterpiece

Background
This project was built for a wonderful client in the Founders Bridge neighborhood. Established in the year 2001, this luxury community is spread over the borders of Powhatan and Chesterfield Counties. The neighborhood encompasses approximately 600 acres and includes sprawling wooded areas and rolling hills, offering stunning natural scenery at every turn. The community was planned around the renowned Independence Golf Club, making it the perfect setting for golf-loving homeowners like our client.

Client Needs
After contacting every pool company in Central Virginia, the clients chose Outdoor Dreams because they wanted someone that would approach the project holistically. The yard was drastically sloped and a large pool project would require significant thought and planning. Additionally, to control the project costs, the clients wanted to work with a company that could value engineer the design to limit the amount of retaining walls required.

Design Phase
Though it looks elegant and simple, designing this space required significant thought and planning. The property had a severe slope making a retaining wall unavoidable. Much of the design process was spent value engineering the layout to provide the clients with the look and space they wanted in a way that also minimized the amount of retaining wall needed. In situations such as this, moving the pool a couple of feet in one direction or another would change the project cost by thousands of dollars.
Build Phase, Challenges, and Finish
The biggest challenge to building this project was removing all the excavated soil. Besides the significant amount of soil that comes with excavating a pool, this project involved removing a sizable portion of the hillside. In total, we removed nearly 200 yards of soil from this backyard. Given the constraints of the backyard, the excavation and hauling had to be completed in coordinated stages. Once the dirt was out of the way, construction moved along smoothly.

-
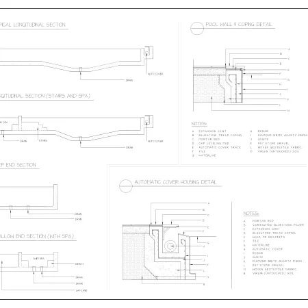
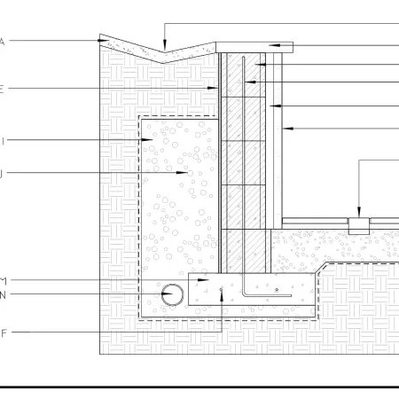
Gunite Pool with Spa and hidden Auto-Cover
-
Variegated Bluestone Pool Decking & Patio
-
Stone Veneered Retaining Walls
-
A "Masters-Inspired" Landscape
-
Low Voltage, LED Lighting
It can take a lot of effort to make a design look effortless...
In order for a design to be elegant and simple, it's important to create a cohesive look where everything comes together harmoniously. Along with a layout composed of clean lines, significant thought and contemplation were put into the material selection.

Recreating Augusta National in a Midlothian Backyard
At the outset of the design process, our client expressed an interest in recreating the look of the Augusta National Golf Club. Augusta is home to the Master's Golf Tournament and renowned for its well-maintained, impeccable appearance. The club is famed for its azaleas and dogwoods that make for a truly stunning sight every year at the Masters tournament.
To recreate the Augusta look, we designed the hillside to include mixed colored azaleas and white dogwoods. Additionally, the flowerbeds around the house were designed to emulate the landscape around the clubhouse entry.
Before -> Rendering -> Actual
Click or drag through these photos to watch this project go from blank slate to conceptual renderings to a dream poolscape.
The Outdoor Dreams' Difference: Automatic Pool Covers
The Outdoor Dreams' Difference: Automatic Pool Covers
At Outdoor Dreams, we believe automatic pool covers are one of the smartest investments you can make for your pool—and we include them on the vast majority of our projects. These covers don’t just add convenience; they’ve changed the way pools are built, maintained, and most importantly, protected.